Attività in affitto

Brescia, Piazzale Arnaldo
€ 3.650 / mese
4 locali 4 locali
100 Mq 100 Mq
3 bagni 3 bagni

Attività in affitto

Brescia, Piazzale Arnaldo

Descrizione annuncio

Proponiamo in locazione un ramo d'azienda sita in un locale commerciale di 100 mq che ospita un'attività storica di cocktail- bar nel cuore del centro storico e della movida bresciana.

La locazione è vincolata all’acquisto dell’attività di cocktail-bar a 150.000,00€.

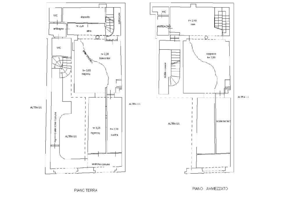
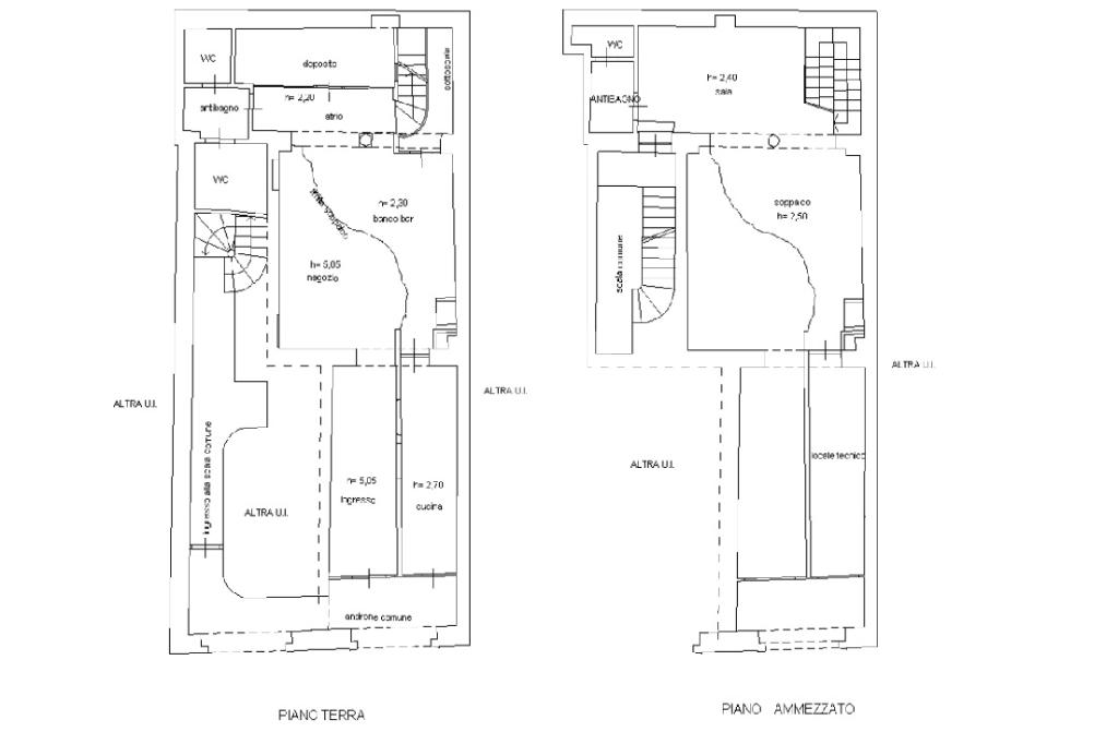
-Superficie: l'attività è insediata in un locale commerciale di 100 mq sito al piano terra di una palazzina a destinazione mista con cantina al piano interrato.

Il locale è disposto su due livelli ed è diviso in un ambiente principale al piano terra, un soppalco, un locale cucina e un piccolo magazzino.

Il locale può ospitare circa 60 coperti interni.

A completare la soluzione, è presente un plateatico esterno di circa 65 mq con una capienza di ulteriori 60 posti a sedere.

-Impianti e servizi: l'immobile è dotato di impianto di riscaldamento/condizionamento autonomo ad aria.

Inoltre, il negozio dispone di n. 2 servizi igienici a disposizione della clientela, di cui uno a norma disabili e n. 1 servizio igienico con spogliatoio privato per i dipendenti al primo piano.

-Il canone di locazione è soggetto ad Iva.

-Le spese condominiali ammontano ad Euro 6000,00/anno e sono comprensive delle spese relative ai consumi di acqua.

Piazzale Arnaldo è una delle principali piazze del centro storico di Brescia, rappresenta un punto di riferimento centrale e vivace grazie alle numerose attività commerciali e al continuo flusso pedonale. Risulta essere ben collegata e facilmente raggiungibile con mezzi pubblici e ben servita da parcheggi ad uso pubblico nella zona.

Mostra tutto

Nelle vicinanze

Trasporto pubblico Trasporto pubblico
Vittoria
Vittoria
890 m
San Faustino
San Faustino
1,2 Km
stazione di Brescia
stazione di Brescia
1,4 Km
Via A.Mario ang P.le Arnaldo
Via A.Mario ang P.le Arnaldo
100 m
c.so Magenta n 64
c.so Magenta n 64
120 m
Ricariche auto elettriche Ricariche auto elettriche
PARCHEGGIO Arnaldo A2A BS
150 m
A2A Largo Torrelunga
180 m
A2A AmbienteParco
490 m
A2A Piazza della Vittoria
800 m
Parcheggio Piazza Vittoria A2A BS
840 m
Scuole Scuole
Liceo Ginnasio Statale Arnaldo
180 m
Liceo Veronica Gambara
210 m
Conservatorio di musica Luca Marenzio
320 m
Istituto Artigianelli
420 m
Università Cattolica del Sacro Cuore
440 m
Farmacia Farmacia
Farmacia Ferretti
60 m
Farmacia Carini
220 m
Farmacia Miserocchi
540 m
Farmacia Schiavo
590 m
Farmacia Fiorentini
650 m
Ospedali Ospedali
Clinica San Camillo
550 m
Ospedale Sant'Orsola
1,0 Km
Ospedale dei Bambini Ronchettino
1,2 Km
Fondazione Poliambulanza Istituto Ospedaliero
1,8 Km
Istituto Clinico Città di Brescia
2,0 Km
Supermercati Supermercati
COOP
670 m
NaturaSì
760 m
Sapori & Dintorni Conad
790 m
Italmark
860 m
Pam
980 m
Negozi Negozi
Drogheria Ronchi
180 m
Reset
490 m
Coin
580 m
Forneria Il Pane
750 m
El Forner
860 m
Bar Bar
La Bodeguita
50 m
Madera
90 m
Mondo Liquido
240 m
Bar
360 m
Bar Camera
400 m
Ristoranti Ristoranti
Arnold's Pizzeria
80 m
Gambero Rosso
370 m
Osteria Nonna Mercede
370 m
La Bersagliera
370 m
Ma! Osteria
430 m
Mostra tutto

Caratteristiche

Rif.:
61123869
Piano:
Terra di 3
Totale piani:
3
Posti auto:
99
Condizionamento:
Autonomo
Ascensore:
No
Mostra tutto
Prezzo Prezzo
€ 3.650 / mese
Spese annue Spese annue
€ 6.000

Classe Energetica

Questo immobile è esente da classe energetica
Anno di costruzione:
1900
Riscaldamento:
Autonomo
Tipo impianto:
Ad aria
Tipo alimentazione:
Aria

Ti interessa visionare l'immobile?

Fissa un appuntamento  Fissa un appuntamento

Richiedi informazioni

* Questi campi sono obbligatori
Affiliato
Brixia Industriale Srl
Via Garibaldi, 78 25086 Rezzato (BS)

Il nostro staff


  • Francesca Barbieri
    Coordinatrice

  • Stefano Ghidini
    Affiliato

  • Francesca Lanzini
    Affiliata

  • Loris Maria Villy Mittica
    Responsabile

  • Noemi Podavini
    Collaboratrice

  • Marina Archetti
    Collaboratrice

  • Dmitry Rodenko
    Collaboratore

  • Francesco Bellicini
    Affiliato
Via Garibaldi, 78 25086 Rezzato (BS)
Zona: Rezzato-Mazzano-Botticino-Castenedolo-Brescia Hinterland Est
Mostra su mappa
Affiliato
Brixia Industriale Srl
Via Garibaldi, 78 25086 Rezzato (BS)

2025 Tecnocasa Franchising S.p.A. - P. IVA 08365160152 - Via Monte Bianco 60/A 20089 Rozzano (MI). Ogni agenzia ha un proprio titolare ed è autonoma. Privacy policy | Policy utilizzo | Cookie policy