Attività in vendita

Brescia, Via S. Polo - San Polo
€ 180.000
4 locali 4 locali
160 Mq 160 Mq
3 bagni 3 bagni

Attività in vendita

Brescia, Via S. Polo - San Polo

Descrizione annuncio

Proponiamo in vendita un'attività con diversi anni di storicità di bar con somministrazione di alimenti freddi e piatti pronti sita fronte strada di elevato passaggio, precisamente in Via San Polo.

L’attività è rinomata nella zona per colazioni, pranzi di lavoro, brunch e aperitivi.

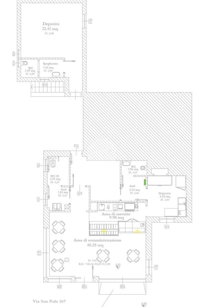
-Superficie: l'attività è insediata in un locale commerciale di 120 mq con ampio giardino ad uso esclusivo.

Il locale è diviso in quattro locali principali tra cui una zona cucina per preparazione piatti rigenerati, attualmente senza canna fumaria, ma con la possibilità di installarla.

A completare la soluzione, è presente una veranda esterna riscaldata di circa 40 mq.

Il locale, considerando l’utilizzo del giardino, ha una capienza complessiva di circa 150 posti a sedere.

È presente al piano interrato un magazzino con accesso carraio di 50mq.

Infine, a disposizione della clientela il locale dispone di un parcheggio ad uso esclusivo.

-Impianti e servizi: l'immobile è dotato di impianto di riscaldamento/condizionamento autonomo ad aria e impianto di filodiffusione in tutti gli ambienti interni ed esterni.

Inoltre, il negozio dispone di un servizio igienico a disposizione della clientela a norma disabili e n. 2 servizi igienici con spogliatoio privato per i dipendenti.

-Il canone di locazione ammonta ad Euro 2.000,00/mese e il contratto di locazione ha un residuo contrattuale di 8 anni rinnovabili.

-Nessuna spesa condominiale

Via San Polo è una vivace strada di Brescia, ricca di negozi, bar e ristoranti. Collega il centro città alla zona est, ed è ben servita dai mezzi pubblici, con fermata della metropolitana e autobus. È facilmente raggiungibile anche dalla tangenziale est e dal casello autostradale di Brescia Centro che dista solo 2 km.

Mostra tutto

Nelle vicinanze

Trasporto pubblico Trasporto pubblico
San Polo Parco
San Polo Parco
600 m
San Polo
San Polo
670 m
Via S.Polo n 167
Via S.Polo n 167
20 m
Via S.Polo n 108
Via S.Polo n 108
50 m
Ricariche auto elettriche Ricariche auto elettriche
A2A San Paolo
1,3 Km
A2A BS FAST Morelli
1,6 Km
A2A St. Eufemia
1,6 Km
A2A AmbienteParco
2,2 Km
A2A BS Brescia San Zeno
2,5 Km
Scuole Scuole
Scuole
590 m
Scuola Secondaria di Primo Grado Giuseppe Tovini
670 m
Istituto Tecnico Agrario Statale Giuseppe Pastori
1,4 Km
Liceo Scientifico Statale Leonardo
1,5 Km
Liceo Scientifico Statale Nicolò Copernico
1,6 Km
Farmacia Farmacia
Farmacia Ragazzoni
320 m
Farmacia Sozzi
730 m
Farmacia Acuto
820 m
Farmacia Comunale 02 San Polo
1,2 Km
Farmacia Comunale di Viale Venezia
1,7 Km
Ospedali Ospedali
Fondazione Poliambulanza Istituto Ospedaliero
1,1 Km
Supermercati Supermercati
Simply Market
310 m
Eurospin
810 m
Conad
830 m
Penny Market
860 m
Esselunga
1,9 Km
Negozi Negozi
Adrian Pam
910 m
Bandera Shopping Center
940 m
Negozi
1,5 Km
Da Frank
1,6 Km
Antica Forneria da Cenci
1,6 Km
Bar Bar
Pinco Pallino
380 m
Lime
1,6 Km
Isla de Tortuga
1,9 Km
Discoteca Paradiso
2,3 Km
Prima Sosta
2,5 Km
Ristoranti Ristoranti
Ristorante Pizzeria La Bussola
580 m
Ristorante Pizzeria L'Incontro
1,2 Km
Ristorante Cascina Maggia
1,2 Km
Antica Birreria Alla Bornata
1,4 Km
Pizzeria Tropi & Co
1,4 Km
Mostra tutto

Caratteristiche

Rif.:
61125342
Piano:
Terra di 2
Totale piani:
2
Box:
1
Posti auto:
99
Condizionamento:
Autonomo
Mostra tutto
Prezzo Prezzo
€ 180.000
Rata mutuo Rata mutuo
€ 827 / mese
Spese annue Spese annue
€ 0
Proponi il tuo prezzoProponi il tuo prezzo

Classe Energetica

Questo immobile è esente da classe energetica
Anno di costruzione:
1970
Riscaldamento:
Autonomo
Tipo impianto:
Ad aria
Tipo alimentazione:
Aria

Ti interessa visionare l'immobile?

Fissa un appuntamento  Fissa un appuntamento

Richiedi informazioni

* Questi campi sono obbligatori

Calcola il tuo mutuo

Semplice e senza impegno
Anticipo

( % )
Mutuo

( % )

pochi semplici passi

inserisci i tuoi dati
Questionario completato
Grazie per aver richiesto un appuntamento senza impegno con un nostro Consulente del Credito e Assicurativo.

Hai inserito correttamente tutti i dati necessari e a breve riceverai una e-mail con un link da convalidare per inviare i tuoi dati.
Affiliato
Brixia Industriale Srl
Via Garibaldi, 78 25086 Rezzato (BS)

Il nostro staff


  • Francesca Barbieri
    Coordinatrice

  • Stefano Ghidini
    Affiliato

  • Francesca Lanzini
    Affiliata

  • Loris Maria Villy Mittica
    Responsabile

  • Noemi Podavini
    Collaboratrice

  • Marina Archetti
    Collaboratrice

  • Dmitry Rodenko
    Collaboratore

  • Francesco Bellicini
    Affiliato
Via Garibaldi, 78 25086 Rezzato (BS)
Zona: Rezzato-Mazzano-Botticino-Castenedolo-Brescia Hinterland Est
Mostra su mappa
Affiliato
Brixia Industriale Srl
Via Garibaldi, 78 25086 Rezzato (BS)

2025 Tecnocasa Franchising S.p.A. - P. IVA 08365160152 - Via Monte Bianco 60/A 20089 Rozzano (MI). Ogni agenzia ha un proprio titolare ed è autonoma. Privacy policy | Policy utilizzo | Cookie policy