Capannone in vendita

Brescia, Via Giuseppe Mejo Voltolina - Zona Via Cremona
€ 225.000
7 locali 7 locali
620 Mq 620 Mq
2 bagni 2 bagni

Capannone in vendita

Brescia, Via Giuseppe Mejo Voltolina - Zona Via Cremona

Descrizione annuncio

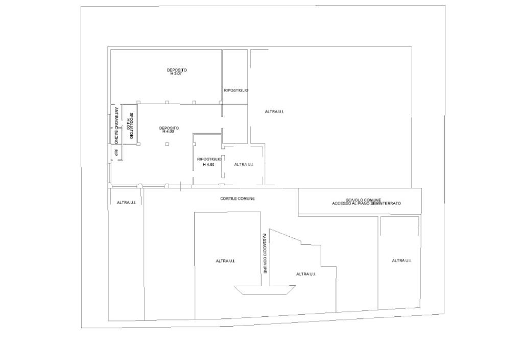
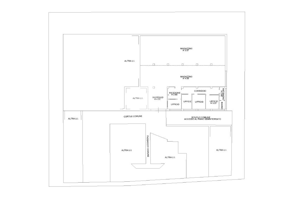
Proponiamo in vendita una soluzione composta da 2 magazzini per una totalità di 620mq con accesso carraio e zona uffici sito in Via Mejo Voltolina, a Brescia (BS).

SUPERFICIE: la soluzione è caratterizzata da n. 2 magazzini adiacenti, rispettivamente di 280mq e 340mq, siti a piano seminterrato a cui si accede tramite rampa.

Il primo magazzino dispone di una piccola zona uffici e accesso carraio.

Il secondo magazzino è stato oggetto di recente ristrutturazione totale e installazione di nuovi serramenti. Si divide in zona reception e n. 4 ambienti ad uso ufficio totalmente controsoffittati e climatizzati con impianto autonomo.

A completare la soluzione è presente una zona di stoccaggio e lavorazione.

Questo magazzino dispone di impianto antincendio.

ALTEZZA INTERNA: 4 mt

IMPIANTI E SERVIZI: l’immobile è dotato di un impianto d’illuminazione di base e impianto elettrico con prese 220 e 380, la soluzione totale dispone di un unico contatore.

Ogni magazzino dispone di un servizio igienico con antibagno.

Le spese condominiali ammontano a circa Euro 1900,00/anno.

Via Mejo Voltolina si trova nella zona sud di Brescia, ben collegato grazie alla vicinanza alla stazione della metropolitana della Volta. A soli 2 km dal centro città e dal casello autostradale di Brescia Centro, è facilmente accessibile anche tramite la tangenziale Sud (BS 11) e le autostrade A4 e A21. La zona è caratterizzata da un forte passaggio pedonale e ottimi collegamenti con i principali quartieri di Brescia.

Mostra tutto

Nelle vicinanze

Trasporto pubblico Trasporto pubblico
Bresciadue
Bresciadue
770 m
Stazione FS
Stazione FS
810 m
stazione di Brescia
stazione di Brescia
970 m
Via Cremona n 76
Via Cremona n 76
80 m
Via Cremona n 49
Via Cremona n 49
110 m
Ricariche auto elettriche Ricariche auto elettriche
A2A BS Brescia San Zeno
320 m
A2A San Zeno
390 m
A2A Parcheggio Kennedy
590 m
A2A BS Via Sostegno
710 m
PARCHEGGIO Stazione A2A BS
870 m
Scuole Scuole
Scuole
520 m
Istituto Comprensivo Rinaldini Sud 3
790 m
Liceo Scientifico Statale Nicolò Copernico
840 m
Liceo Scientifico Statale Leonardo
930 m
Conservatorio di musica Luca Marenzio
1,0 Km
Farmacia Farmacia
Farmacia Austoni
140 m
Farmacia Bravi
450 m
Farmacia Fiorentini
630 m
Parafarmacia BewellPharma
640 m
Farmacia di via Volta
860 m
Ospedali Ospedali
Ospedale Sant'Orsola
1,1 Km
Fondazione Poliambulanza Istituto Ospedaliero
1,3 Km
Pilastroni
1,7 Km
Clinica San Camillo
1,8 Km
Ospedale dei Bambini Ronchettino
2,4 Km
Supermercati Supermercati
Simply
150 m
to.market
980 m
Prix
1,1 Km
COOP
1,2 Km
NaturaSì
1,3 Km
Negozi Negozi
Il forno di via Cremona
80 m
Meraglino
870 m
Lekkerland
890 m
Negozi
1,0 Km
El Forner
1,1 Km
Bar Bar
Bar Pierrot
850 m
Bar Pi Greco
860 m
Bar
870 m
Green Cafè
920 m
Caffè ristretto
1,0 Km
Ristoranti Ristoranti
Ristorante Pizzeria Laguna Blu
150 m
Seconda Classe
410 m
Areadocks
430 m
Mi
470 m
Manuno Bis
610 m
Mostra tutto

Caratteristiche

Rif.:
61165015
Piano:
Seminterrato di 2
Totale piani:
2
Posti auto:
99
Condizionamento:
Autonomo
Ascensore:
No
Mostra tutto
Prezzo Prezzo
€ 225.000
Rata mutuo Rata mutuo
€ 1.061 / mese
Spese annue Spese annue
€ 1.900
Proponi il tuo prezzoProponi il tuo prezzo

Classe Energetica

Questo immobile è esente da classe energetica
Anno di costruzione:
1970
Riscaldamento:
Autonomo
Tipo impianto:
Ad aria
Tipo alimentazione:
Aria

Ti interessa visionare l'immobile?

Fissa un appuntamento  Fissa un appuntamento

Richiedi informazioni

Clicca su Leggi per aprire l'informativa
* Questi campi sono obbligatori

Calcola il tuo mutuo

Semplice e senza impegno
Anticipo

( % )
Mutuo

( % )

pochi semplici passi

inserisci i tuoi dati
Questionario completato
Grazie per aver richiesto un appuntamento senza impegno con un nostro Consulente del Credito e Assicurativo.

Hai inserito correttamente tutti i dati necessari e a breve riceverai una e-mail con un link da convalidare per inviare i tuoi dati.
Affiliato
Brixia Industriale Srl
Via Garibaldi, 78 25086 Rezzato (BS)

Il nostro staff


  • Francesca Barbieri
    Coordinatrice

  • Stefano Ghidini
    Affiliato

  • Francesca Lanzini
    Affiliata

  • Noemi Podavini
    Collaboratrice

  • Marina Archetti
    Collaboratrice

  • Dmitry Rodenko
    Collaboratore

  • Francesco Bellicini
    Affiliato
Via Garibaldi, 78 25086 Rezzato (BS)
Zona: Rezzato-Mazzano-Botticino-Castenedolo-Brescia Hinterland Est
Mostra su mappa
Affiliato
Brixia Industriale Srl
Via Garibaldi, 78 25086 Rezzato (BS)

2026 Tecnocasa Franchising S.p.A. - P. IVA 08365160152 - Via Monte Bianco 60/A 20089 Rozzano (MI). Ogni agenzia ha un proprio titolare ed è autonoma. Privacy policy | Policy utilizzo | Cookie policy