Negozio in affitto

Brescia, Via Sant'Orsola - San Eufemia Della Fonte
2 locali 2 locali
700 Mq 700 Mq
2 bagni 2 bagni

Negozio in affitto

Brescia, Via Sant'Orsola - San Eufemia Della Fonte

Descrizione annuncio

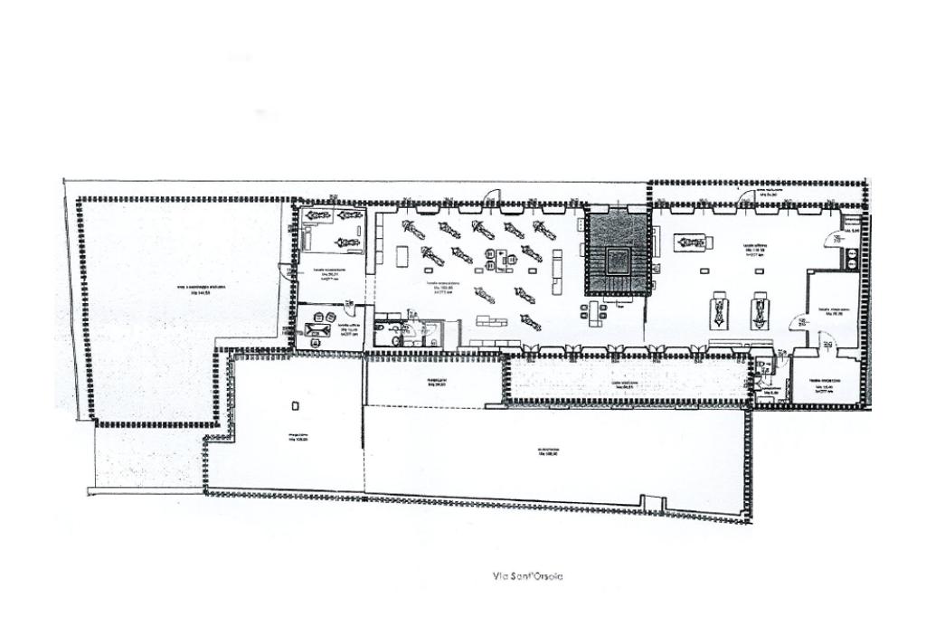
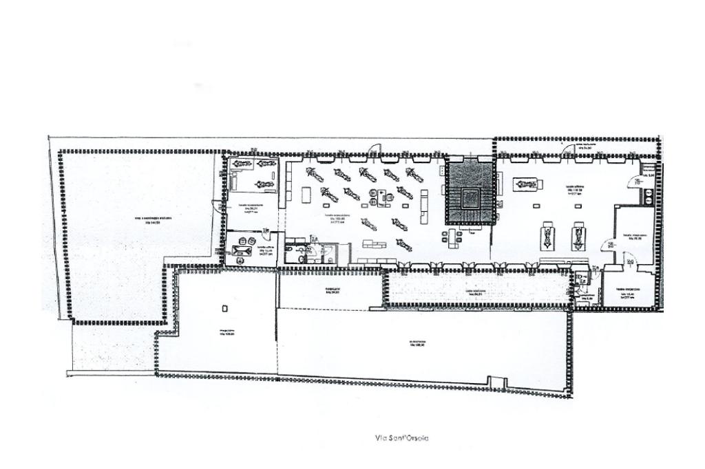
Proponiamo in locazione un immobile di 700mq con canna fumaria e piazzale di parcheggio che si affaccia su Viale Sant’Eufemia, una via di elevato passaggio veicolare.

SUPERFICIE: l’immobile ha una superficie complessiva di 700mq suddivisi in un locale commerciale di 380mq e un magazzino di 320mq con accesso carraio.

I due ambienti sono separati da una corte esterna ad uso esclusivo.

A completare la soluzione, è presente un ampio piazzale di parcheggio antistante a disposizione della clientela.

IMPIANTI E SERVIZI: il negozio è dotato di doppio servizio igienico con antibagno, di cui uno a norma disabili.

Inoltre, dispone di impianto di riscaldamento/raffrescamento autonomo.

-Il canone di locazione non è soggetto ad Iva.

Il complesso sorge in corrispondenza del semaforo che regola il traffico verso Sant’Eufemia della Fonte, su una delle principali arterie d’accesso alla città. A poche centinaia di metri si trovano gli svincoli della Strada Provinciale BS 11 (Tangenziale Sud), che collega i principali quartieri cittadini e l'ingresso del casello autostradale di Brescia Centro (A21 e A4). La zona è servita dal trasporto pubblico, con fermata autobus all’ingresso carraio e la stazione metro di Sant’Eufemia a circa 1 km.

Mostra tutto

Nelle vicinanze

Trasporto pubblico Trasporto pubblico
Sanpolino
Sanpolino
940 m
Sant'Eufemia - Buffalora
Sant'Eufemia - Buffalora
1,1 Km
v.le S. Eufemia Ang. Indipendenza
v.le S. Eufemia Ang. Indipendenza
170 m
v.le S. Eufemia fr. Ang. Indipendenza
v.le S. Eufemia fr. Ang. Indipendenza
170 m
Ricariche auto elettriche Ricariche auto elettriche
LIDL Brescia Sant'Eufemia
560 m
A2A St. Eufemia
770 m
A2A San Paolo
880 m
Scuole Scuole
Scuola Secondaria di Primo Grado
640 m
Scuola Primaria Pietro Boifava
690 m
Istituto Tecnico Agrario Statale Giuseppe Pastori
1,3 Km
Scuola Secondaria di Primo Grado Giuseppe Tovini
1,5 Km
Scuola secondaria di primo grado Giovita Scalvini
2,7 Km
Farmacia Farmacia
Farmacia Cavadini
420 m
Farmacia Lanzani
1,0 Km
Farmacia Acuto
1,6 Km
Farmacia Sozzi
2,0 Km
Farmacia Ragazzoni
2,2 Km
Supermercati Supermercati
LIDL
540 m
Italmark
920 m
Conad
1,8 Km
Penny Market
1,9 Km
Punto Simply
2,2 Km
Negozi Negozi
Dolce Salato
90 m
Negozi
140 m
Il Forno di Bonetta Gianni
200 m
Da Pì
370 m
Antica Forneria da Cenci
730 m
Bar Bar
Circolo Colony
960 m
Prima Sosta
990 m
Pinco Pallino
2,3 Km
Isla de Tortuga
2,6 Km
Ristoranti Ristoranti
Ristorante La Piazzetta
130 m
Black Bull
130 m
Bier Stube da Mauro
150 m
Ristorante Civico 84
170 m
Ristorante Pizzeria iDon
650 m
Mostra tutto

Caratteristiche

Rif.:
61183874
Piano:
Terra di 1
Totale piani:
1
Posti auto:
99
Condizionamento:
Autonomo
Ascensore:
No
Mostra tutto
Prezzo Prezzo
€ 4.100 / mese
Spese annue Spese annue
€ 0
Anche in vendita a

Classe Energetica

Questo immobile è esente da classe energetica
Anno di costruzione:
1980
Riscaldamento:
Autonomo
Tipo impianto:
Ad aria
Tipo alimentazione:
Aria

Ti interessa visionare l'immobile?

Fissa un appuntamento  Fissa un appuntamento

Richiedi informazioni

Clicca su Leggi per aprire l'informativa
* Questi campi sono obbligatori
Affiliato
Brixia Industriale Srl
Via Garibaldi, 78 25086 Rezzato (BS)

Il nostro staff


  • Francesca Barbieri
    Coordinatrice

  • Stefano Ghidini
    Affiliato

  • Francesca Lanzini
    Affiliata

  • Noemi Podavini
    Collaboratrice

  • Marina Archetti
    Collaboratrice

  • Dmitry Rodenko
    Collaboratore

  • Francesco Bellicini
    Affiliato
Via Garibaldi, 78 25086 Rezzato (BS)
Zona: Rezzato-Mazzano-Botticino-Castenedolo-Brescia Hinterland Est
Mostra su mappa
Affiliato
Brixia Industriale Srl
Via Garibaldi, 78 25086 Rezzato (BS)

2026 Tecnocasa Franchising S.p.A. - P. IVA 08365160152 - Via Monte Bianco 60/A 20089 Rozzano (MI). Ogni agenzia ha un proprio titolare ed è autonoma. Privacy policy | Policy utilizzo | Cookie policy