Negozio in vendita

Brescia, Via Carpaccio - San Polo
€ 80.000
5 locali 5 locali
140 Mq 140 Mq
2 bagni 2 bagni

Negozio in vendita

Brescia, Via Carpaccio - San Polo

Descrizione annuncio

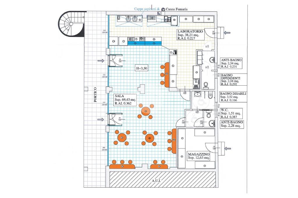
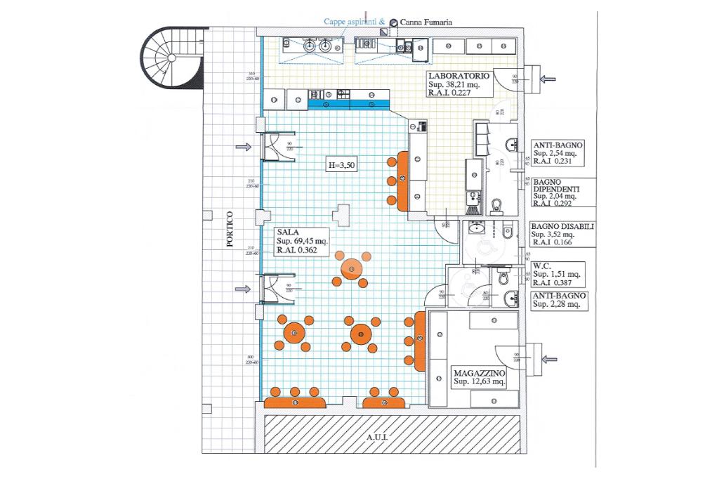
Proponiamo in vendita un locale commerciale di 140mq diviso in n. 4 locali con canna fumaria e ampio piazzale di parcheggio sito nella zona di San Polo (BS), più precisamente in Via Carpaccio.

-Superficie: la soluzione è caratterizzata da una superficie complessiva di 140 mq con n. 4 vetrine ed è suddiviso in n. 4 ambienti e un ulteriore locale ad uso magazzino.

L'immobile dispone di doppio accesso frontale e un ulteriore accesso sul retro che consente il carico e scarico della merce.

A completare la soluzione, è presente un ampio piazzale di parcheggio ad uso pubblico antistante e a disposizione della clientela.

-Impianti e servizi: il negozio è dotato di doppi servizi igienici con antibagno, di cui uno con doccia.

L'immobile è dotato di impianto di riscaldamento e raffrescamento autonomo tramite split oltre a impianto di riscaldamento centralizzato.

A completare la soluzione è presente una canna fumaria.

-Le spese condominiali ammontano a circa Euro 2.000,00/anno e sono comprensive delle spese relative alle utenze e i consumi di riscaldamento.

Considerate le caratteristiche sopra descritte, la soluzione si presta all'insediamento di attività a contatto diretto con il pubblico, a destinazione direzionale o all'utilizzo come laboratorio alimentare, come avvenuto in passato.

Via Carpaccio si trova nel quartiere di San Polo, in una delle strade che caratterizzano l'area commerciale e residenziale della zona. È situata a soli 2 km da Viale Duca degli Abruzzi e nelle vicinanze di Via San Polo, arteria principale che collega il quartiere all'est di Brescia, fino a San Eufemia. La zona è ben servita da attività commerciali, mezzi pubblici e dalla metropolitana. L'immobile è facilmente raggiungibile da ogni direzione, grazie alla vicinanza con le principali arterie stradali: si trova a pochi chilometri dal casello A4 Milano-Venezia (Brescia Centro) e dalla Corda Molle, che collega le autostrade A4 e A21.

Mostra tutto

Nelle vicinanze

Trasporto pubblico Trasporto pubblico
San Polo Parco
San Polo Parco
450 m
Poliambulanza
Poliambulanza
770 m
Via Carpaccio n 1
Via Carpaccio n 1
100 m
Via Carpaccio n 28
Via Carpaccio n 28
110 m
Ricariche auto elettriche Ricariche auto elettriche
A2A BS FAST Morelli
1,1 Km
A2A San Paolo
1,7 Km
A2A St. Eufemia
2,1 Km
Provide Cars San Zeno | EnelX
2,3 Km
A2A AmbienteParco
2,3 Km
Scuole Scuole
Scuole
350 m
Scuola Secondaria di Primo Grado Giuseppe Tovini
1,2 Km
Liceo Scientifico Statale Leonardo
1,4 Km
Liceo Scientifico Statale Nicolò Copernico
1,6 Km
Istituto Comprensivo Rinaldini Sud 3
1,8 Km
Farmacia Farmacia
Farmacia Ragazzoni
440 m
Farmacia Comunale 02 San Polo
1,1 Km
Farmacia Sozzi
1,2 Km
Farmacia Acuto
1,3 Km
Farmacia di via Volta
1,7 Km
Ospedali Ospedali
Fondazione Poliambulanza Istituto Ospedaliero
1,1 Km
Supermercati Supermercati
Eurospin
320 m
Simply Market
330 m
Conad
1,3 Km
Penny Market
1,4 Km
Esselunga
1,5 Km
Negozi Negozi
Bandera Shopping Center
850 m
Adrian Pam
1,1 Km
Negozi
1,3 Km
Da Frank
1,5 Km
Meraglino
1,5 Km
Bar Bar
Pinco Pallino
290 m
Lime
1,7 Km
Isla de Tortuga
1,8 Km
Discoteca Paradiso
2,1 Km
Bar Più o Meno
2,3 Km
Ristoranti Ristoranti
Ristorante Cascina Maggia
770 m
Ristorante Pizzeria La Bussola
910 m
Ristorante Pizzeria L'Incontro
940 m
Roadhouse Grill
1,4 Km
Pizzeria Tropi & Co
1,6 Km
Mostra tutto

Caratteristiche

Rif.:
61122669
Piano:
Terra di 4
Totale piani:
4
Posti auto:
99
Condizionamento:
Autonomo
Ascensore:
No
Mostra tutto
Prezzo Prezzo
€ 80.000
Rata mutuo Rata mutuo
€ 367 / mese
Spese annue Spese annue
€ 2.000
Proponi il tuo prezzoProponi il tuo prezzo

Classe Energetica

F
F
F
F
F
F
F
F
F
EP globale non rinnovabile:
56.16 kW h/m² anno
Anno di costruzione:
1980
Riscaldamento:
Centralizzato
Tipo impianto:
Ad aria
Tipo alimentazione:
Aria

Ti interessa visionare l'immobile?

Fissa un appuntamento  Fissa un appuntamento

Richiedi informazioni

* Questi campi sono obbligatori

Calcola il tuo mutuo

Semplice e senza impegno
Anticipo

( % )
Mutuo

( % )

pochi semplici passi

inserisci i tuoi dati
Questionario completato
Grazie per aver richiesto un appuntamento senza impegno con un nostro Consulente del Credito e Assicurativo.

Hai inserito correttamente tutti i dati necessari e a breve riceverai una e-mail con un link da convalidare per inviare i tuoi dati.
Affiliato
Brixia Industriale Srl
Via Garibaldi, 78 25086 Rezzato (BS)

Il nostro staff


  • Francesca Barbieri
    Coordinatrice

  • Stefano Ghidini
    Affiliato

  • Francesca Lanzini
    Affiliata

  • Loris Maria Villy Mittica
    Responsabile

  • Noemi Podavini
    Collaboratrice

  • Marina Archetti
    Collaboratrice

  • Dmitry Rodenko
    Collaboratore

  • Francesco Bellicini
    Affiliato
Via Garibaldi, 78 25086 Rezzato (BS)
Zona: Rezzato-Mazzano-Botticino-Castenedolo-Brescia Hinterland Est
Mostra su mappa
Affiliato
Brixia Industriale Srl
Via Garibaldi, 78 25086 Rezzato (BS)

2025 Tecnocasa Franchising S.p.A. - P. IVA 08365160152 - Via Monte Bianco 60/A 20089 Rozzano (MI). Ogni agenzia ha un proprio titolare ed è autonoma. Privacy policy | Policy utilizzo | Cookie policy