Ufficio in affitto

Brescia, Via Berardo Maggi
4 locali 4 locali
110 Mq 110 Mq
1 bagno 1 bagno

Ufficio in affitto

Brescia, Via Berardo Maggi

Descrizione annuncio

Proponiamo in locazione un ufficio di 110mq situato a ridosso del centro di Brescia, precisamente in Via Berardo Maggi, all’interno di un complesso direzionale.

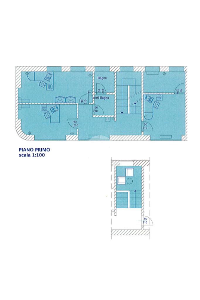
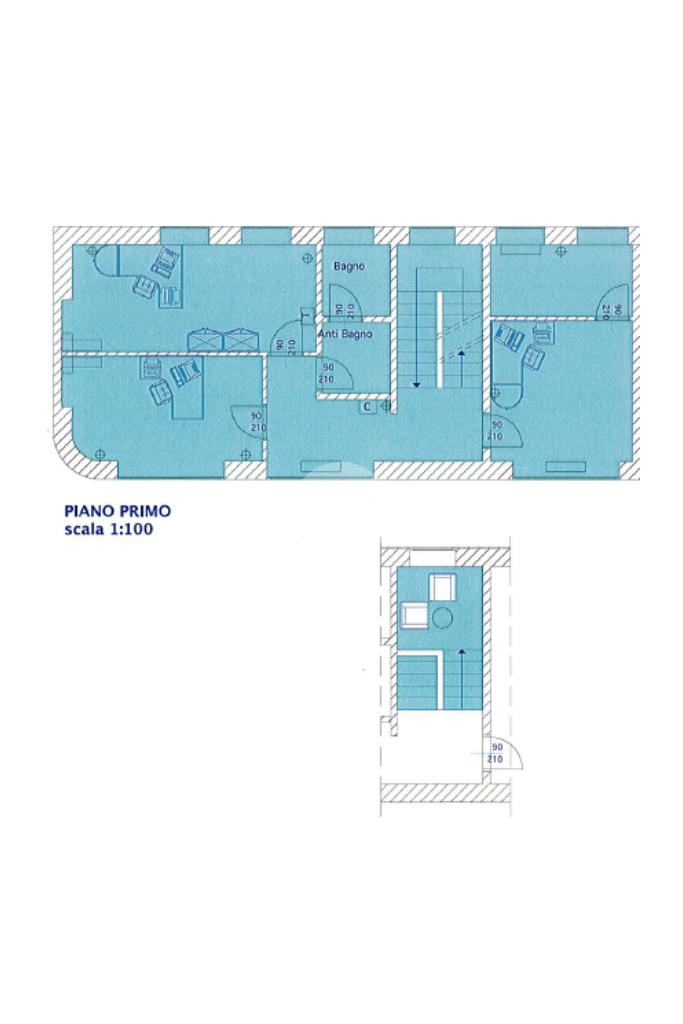
SUPERFICIE: l’ufficio ha una superficie complessiva di 110 mq, è diviso in n. 4 ambienti e si sviluppa su due livelli.

A completare la soluzione, sono presenti n. 2 posti auto ad uso esclusivo nella corte interna del complesso.

IMPIANTI E SERVIZI: l’ufficio dispone di impiantistica a norma.

È dotato di impianto di riscaldamento/raffrescamento autonomo.

Inoltre, è presente un servizio igienico con antibagno.

-Il canone di locazione è soggetto ad Iva.

-Le spese condominiali ammontano ad Euro 300,00/anno

Considerate la posizione e le caratteristiche sovra esposte, l’immobile risulta particolarmente adatto all’insediamento di realtà direzionali o professionali.

Via Berardo Maggi è una traversa di Viale Duca degli Abruzzi e si trova nella zona sud di Brescia, ben collegato grazie alla vicinanza alla stazione della metropolitana della Volta. Funge da collegamento tra Via Diaz e Viale Duca degli Abruzzi. Si trova a soli 2 km dal centro città e dal casello autostradale di Brescia Centro, è facilmente accessibile anche tramite la tangenziale Sud (BS 11) e le autostrade A4 e A21. La zona è caratterizzata da un forte passaggio pedonale e ottimi collegamenti con i principali quartieri di Brescia.

Mostra tutto

Nelle vicinanze

Trasporto pubblico Trasporto pubblico
Volta
Volta
1,1 Km
Stazione FS
Stazione FS
1,2 Km
stazione di Brescia
stazione di Brescia
1,4 Km
V.le Duca degli Abruzzi n 14
V.le Duca degli Abruzzi n 14
280 m
Via Duca degli Abruzzi n 15
Via Duca degli Abruzzi n 15
290 m
Ricariche auto elettriche Ricariche auto elettriche
A2A BS Brescia San Zeno
470 m
A2A AmbienteParco
750 m
A2A San Zeno
840 m
A2A Largo Torrelunga
1,0 Km
PARCHEGGIO Arnaldo A2A BS
1,1 Km
Scuole Scuole
Liceo Scientifico Statale Nicolò Copernico
400 m
Scuole
450 m
Liceo Scientifico Statale Leonardo
550 m
Liceo Ginnasio Statale Arnaldo
910 m
Istituto Professionale per i Servizi Commerciali Sraffa
930 m
Farmacia Farmacia
Farmacia Austoni
390 m
Farmacia Fiorentini
410 m
Farmacia Bravi
860 m
Parafarmacia BewellPharma
880 m
Farmacia di via Volta
930 m
Ospedali Ospedali
Fondazione Poliambulanza Istituto Ospedaliero
930 m
Ospedale Sant'Orsola
1,3 Km
Clinica San Camillo
1,6 Km
Pilastroni
2,2 Km
Ospedale dei Bambini Ronchettino
2,2 Km
Supermercati Supermercati
Simply
650 m
COOP
740 m
NaturaSì
1,4 Km
to.market
1,4 Km
Italmark
1,5 Km
Negozi Negozi
Il forno di via Cremona
420 m
Meraglino
760 m
Negozi
810 m
Lekkerland
960 m
Drogheria Ronchi
1,1 Km
Bar Bar
Lime
640 m
Mondo Liquido
880 m
Bar
980 m
La Bodeguita
1,0 Km
Madera
1,1 Km
Ristoranti Ristoranti
Trattoria Alpino
300 m
Areadocks
440 m
Seconda Classe
480 m
Ristorante Pizzeria Laguna Blu
650 m
Fenicità
730 m
Mostra tutto

Caratteristiche

Rif.:
61180692
Piano:
Terra di 2
Totale piani:
2
Posti auto:
2
Condizionamento:
Autonomo
Ascensore:
No
Mostra tutto
Prezzo Prezzo
€ 1.200 / mese
Spese annue Spese annue
€ 300
Anche in vendita a

Classe Energetica

Questo immobile è esente da classe energetica
Anno di costruzione:
1960
Riscaldamento:
Autonomo
Tipo impianto:
Ad aria
Tipo alimentazione:
Aria

Ti interessa visionare l'immobile?

Fissa un appuntamento  Fissa un appuntamento

Richiedi informazioni

Clicca su Leggi per aprire l'informativa
* Questi campi sono obbligatori
Affiliato
Brixia Industriale Srl
Via Garibaldi, 78 25086 Rezzato (BS)

Il nostro staff


  • Francesca Barbieri
    Coordinatrice

  • Stefano Ghidini
    Affiliato

  • Francesca Lanzini
    Affiliata

  • Noemi Podavini
    Collaboratrice

  • Marina Archetti
    Collaboratrice

  • Dmitry Rodenko
    Collaboratore

  • Francesco Bellicini
    Affiliato
Via Garibaldi, 78 25086 Rezzato (BS)
Zona: Rezzato-Mazzano-Botticino-Castenedolo-Brescia Hinterland Est
Mostra su mappa
Affiliato
Brixia Industriale Srl
Via Garibaldi, 78 25086 Rezzato (BS)

2026 Tecnocasa Franchising S.p.A. - P. IVA 08365160152 - Via Monte Bianco 60/A 20089 Rozzano (MI). Ogni agenzia ha un proprio titolare ed è autonoma. Privacy policy | Policy utilizzo | Cookie policy