Negozio in vendita

Mazzano, Viale Brescia - Molinetto
€ 200.000
12 locali 12 locali
520 Mq 520 Mq
3 bagni 3 bagni

Negozio in vendita

Mazzano, Viale Brescia - Molinetto

Descrizione annuncio

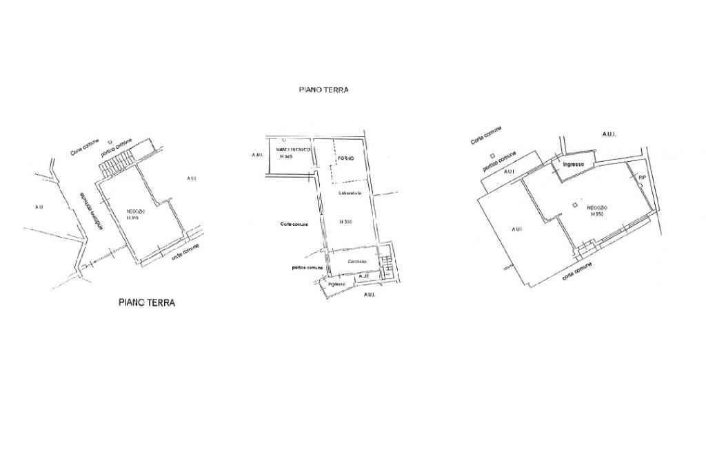
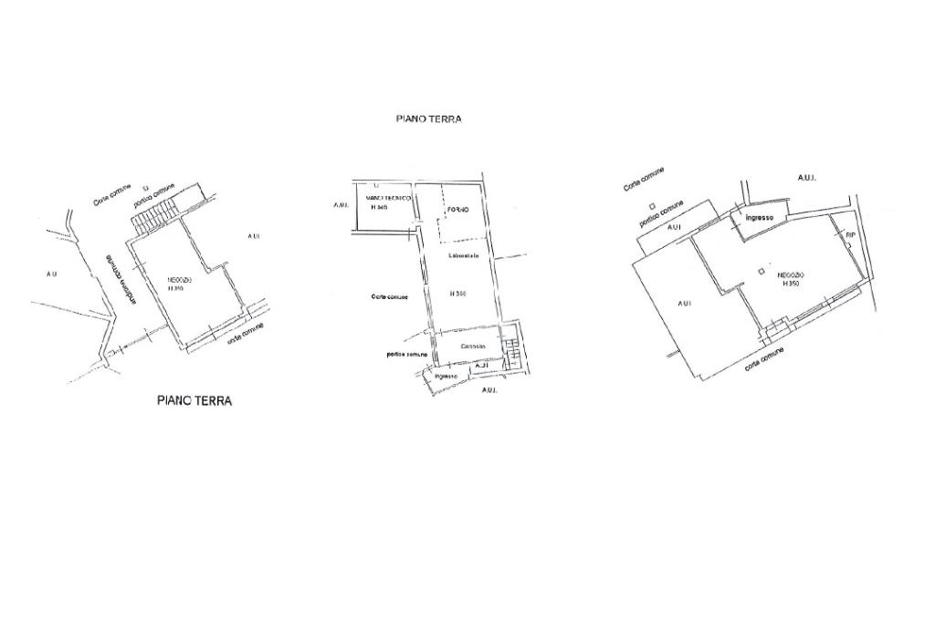
Proponiamo in vendita una soluzione composta da due locali commerciali di 60mq ciascuno posto a piano terra di una palazzina a destinazione mista e da due appartamenti al piano primo sito in Viale Brescia a Mazzano.

-Superficie: la soluzione è composta da due locali commerciali di 60mq ciascuno con vetrina fronte strada, di cui uno dispone di un laboratorio di circa 100mq con canna fumaria e forno.

Al piano primo sono presenti due appartamenti quadrilocali di circa 300mq complessivi con un unico balcone che segue il perimetro.

A completare la soluzione, è presente una corte privata sul retro dell’immobile e una cantina al piano interrato di circa 100mq.

-Impianti e servizi: la soluzione dispone di n. 3 servizi igienici, di cui uno per appartamento e uno esterno a servizio del negozio.

Tutta la soluzione deve essere oggetto di una completa e totale ristrutturazione.

Viale Brescia è una delle principali arterie del comune di Mazzano. Si tratta di una zona a destinazione mista, caratterizzata da numerose attività commerciali e unità residenziali, con diversi posti auto ad uso pubblico. La via è facilmente raggiungibile con i mezzi pubblici ed è ben accessibile dalle principali vie di comunicazione.

Mostra tutto

Nelle vicinanze

Trasporto pubblico Trasporto pubblico
Via Sberna capolinea
Via Sberna capolinea
2,6 Km
Via Leonardo da Vinci 78
Via Leonardo da Vinci 78
2,9 Km
Ricariche auto elettriche Ricariche auto elettriche
Detas eVolve Smart 22KW+22KW
2,0 Km
Scuole Scuole
Scuola secondaria di primo grado Alexander Fleming
300 m
Scuola Primaria
1,4 Km
Scuola primaria Pietro Goini
2,5 Km
Farmacia Farmacia
Farmacia Comunale
70 m
Farmacia Ferrari
670 m
Farmacia Simeoni Dottoressa Piazzi
2,5 Km
Farmacia Girelli
2,8 Km
Ospedali Ospedali
Azienda Tutela Salute
2,9 Km
Supermercati Supermercati
Sigma
400 m
Bennet
1,1 Km
MD
1,3 Km
Despar
3,0 Km
Negozi Negozi
Gamma sport
290 m
Chicco
900 m
Minimarket Sorelle Confortini
2,6 Km
Bar Bar
Sister's Cafe
1,3 Km
Bar
2,3 Km
Ristoranti Ristoranti
Albergo ristorante Mantovano
1,6 Km
Ristorante Pizzeria La Piccola Primavera
1,8 Km
Ristorante Pizzeria La Piola
1,9 Km
La Rustica
2,0 Km
Caffetteria Bar Ristorante
2,3 Km
Mostra tutto

Caratteristiche

Rif.:
61125955
Piano:
Terra di 2
Totale piani:
2
Posti auto:
99
Condizionamento:
Autonomo
Ascensore:
No
Mostra tutto
Prezzo Prezzo
€ 200.000
Rata mutuo Rata mutuo
€ 919 / mese
Spese annue Spese annue
€ 0
Proponi il tuo prezzoProponi il tuo prezzo

Classe Energetica

Questo immobile è esente da classe energetica
Anno di costruzione:
1960
Riscaldamento:
Autonomo
Tipo impianto:
Ad aria
Tipo alimentazione:
Aria

Ti interessa visionare l'immobile?

Fissa un appuntamento  Fissa un appuntamento

Richiedi informazioni

* Questi campi sono obbligatori

Calcola il tuo mutuo

Semplice e senza impegno
Anticipo

( % )
Mutuo

( % )

pochi semplici passi

inserisci i tuoi dati
Questionario completato
Grazie per aver richiesto un appuntamento senza impegno con un nostro Consulente del Credito e Assicurativo.

Hai inserito correttamente tutti i dati necessari e a breve riceverai una e-mail con un link da convalidare per inviare i tuoi dati.
Affiliato
Brixia Industriale Srl
Via Garibaldi, 78 25086 Rezzato (BS)

Il nostro staff


  • Francesca Barbieri
    Coordinatrice

  • Stefano Ghidini
    Affiliato

  • Francesca Lanzini
    Affiliata

  • Loris Maria Villy Mittica
    Responsabile

  • Noemi Podavini
    Collaboratrice

  • Marina Archetti
    Collaboratrice

  • Dmitry Rodenko
    Collaboratore

  • Francesco Bellicini
    Affiliato
Via Garibaldi, 78 25086 Rezzato (BS)
Zona: Rezzato-Mazzano-Botticino-Castenedolo-Brescia Hinterland Est
Mostra su mappa
Affiliato
Brixia Industriale Srl
Via Garibaldi, 78 25086 Rezzato (BS)

2025 Tecnocasa Franchising S.p.A. - P. IVA 08365160152 - Via Monte Bianco 60/A 20089 Rozzano (MI). Ogni agenzia ha un proprio titolare ed è autonoma. Privacy policy | Policy utilizzo | Cookie policy