Negozio in vendita

Rezzato, Via Giuseppe Zanardelli - Virle
€ 75.000
2 locali 2 locali
120 Mq 120 Mq
1 bagno 1 bagno

Negozio in vendita

Rezzato, Via Giuseppe Zanardelli - Virle

Descrizione annuncio

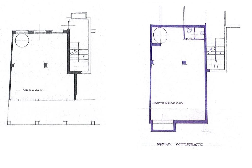
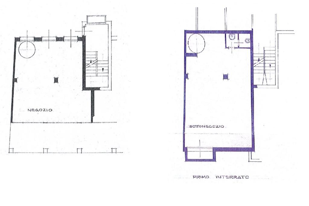
Proponiamo in vendita un negozio di 120 mq suddiviso in due ambienti sviluppato su due livelli collegati internamente tramite scala a chiocciola.

-Superficie: il negozio ha una superficie complessiva di 120 mq ed è sviluppato su due livelli. È caratterizzato da un ambiente al piano terra open space di 50mq e un ambiente al piano interrato di 70mq.

A completamento della soluzione, è presente un ampio parcheggio antistante.

-Impianti: il negozio è dotato di impianto di riscaldamento e raffrescamento autonomi.

Inoltre, è presente un servizio igienico con antibagno al piano interrato.

-Le spese condominiali ammontano ad Euro 800/mese comprensivo delle spese per i consumi di acqua.

Via Giuseppe Zanardelli si trova a Rezzato, nel quartiere Virle in una zona ben collegata tramite mezzi pubblici e facilmente accessibile dalla strada statale di Rezzato e da Via Gardesana, che sbocca nel comune di Mazzano. Sono presenti nella zona numerose attività commerciali e direzionali, il Centro commerciale Cristallo dista meno di 1 km.

Mostra tutto

Nelle vicinanze

Trasporto pubblico Trasporto pubblico
Rezzato
Rezzato
2,1 Km
Via Sberna capolinea
Via Sberna capolinea
40 m
Via Leonardo da Vinci 78
Via Leonardo da Vinci 78
510 m
Ricariche auto elettriche Ricariche auto elettriche
Detas eVolve Smart 22KW+22KW
1,0 Km
Scuole Scuole
Scuola primaria Pietro Goini
240 m
Scuole
1,0 Km
Scuola Primaria Tito Speri
1,4 Km
Scuola Primaria
1,7 Km
Scuola Primaria Caduti Piazza della Loggia
1,8 Km
Farmacia Farmacia
Farmacia Simeoni Dottoressa Piazzi
70 m
Farmacia Comunale San Carlo
1,9 Km
Farmacia Ferrari
2,1 Km
Farmacia Comunale
2,1 Km
Ospedali Ospedali
Azienda Tutela Salute
770 m
Supermercati Supermercati
Despar
690 m
LIDL
1,1 Km
MD
1,8 Km
Bennet
1,9 Km
Punto Simply
2,3 Km
Negozi Negozi
Minimarket Sorelle Confortini
50 m
La Nuova Forneria
1,4 Km
Chicco
2,1 Km
Gamma sport
2,9 Km
Bar Bar
Cocorico cafè
1,0 Km
Richs
1,3 Km
Bar
1,7 Km
Sister's Cafe
1,9 Km
Ristoranti Ristoranti
Non Solo Baracca...
430 m
Ristorante La Pina
890 m
Niko Niko
980 m
La Sosta
1,0 Km
Pizzeria Ristorante Mozart
1,1 Km
Mostra tutto

Caratteristiche

Rif.:
61127914
Piano:
Terra di 3
Totale piani:
3
Posti auto:
99
Condizionamento:
Autonomo
Ascensore:
No
Mostra tutto
Prezzo Prezzo
€ 75.000
Rata mutuo Rata mutuo
€ 345 / mese
Spese annue Spese annue
€ 800
Proponi il tuo prezzoProponi il tuo prezzo

Altre caratteristiche

Descrizione dei locali
Bagno antibagno

Classe Energetica

Questo immobile è esente da classe energetica
Anno di costruzione:
1960
Riscaldamento:
Autonomo
Tipo impianto:
Ad aria
Tipo alimentazione:
Aria

Ti interessa visionare l'immobile?

Fissa un appuntamento  Fissa un appuntamento

Richiedi informazioni

* Questi campi sono obbligatori

Calcola il tuo mutuo

Semplice e senza impegno
Anticipo

( % )
Mutuo

( % )

pochi semplici passi

inserisci i tuoi dati
Questionario completato
Grazie per aver richiesto un appuntamento senza impegno con un nostro Consulente del Credito e Assicurativo.

Hai inserito correttamente tutti i dati necessari e a breve riceverai una e-mail con un link da convalidare per inviare i tuoi dati.
Affiliato
Brixia Industriale Srl
Via Garibaldi, 78 25086 Rezzato (BS)

Il nostro staff


  • Francesca Barbieri
    Coordinatrice

  • Stefano Ghidini
    Affiliato

  • Francesca Lanzini
    Affiliata

  • Loris Maria Villy Mittica
    Responsabile

  • Noemi Podavini
    Collaboratrice

  • Marina Archetti
    Collaboratrice

  • Dmitry Rodenko
    Collaboratore

  • Francesco Bellicini
    Affiliato
Via Garibaldi, 78 25086 Rezzato (BS)
Zona: Rezzato-Mazzano-Botticino-Castenedolo-Brescia Hinterland Est
Mostra su mappa
Affiliato
Brixia Industriale Srl
Via Garibaldi, 78 25086 Rezzato (BS)

2025 Tecnocasa Franchising S.p.A. - P. IVA 08365160152 - Via Monte Bianco 60/A 20089 Rozzano (MI). Ogni agenzia ha un proprio titolare ed è autonoma. Privacy policy | Policy utilizzo | Cookie policy